Дом спроектированный знаменитым архитектором Сиднея, но не имеющий статус исторического наследия, очень редко открывает свои двери. Но особые мероприятия дают возможность доступа к таким частным владениям.

Дом Джулиана Роуз (Julian Rose House)



В рамках «Фестиваля наследия», что проходит в нашем районе Сиднея, посетила один из неординарных домов, находящийся в частном владении. Экскурсия включала посещение Дом Роуз Зейдлер (Rose Seidler House), который на сегодняшний день нуждается в ремонте, и Дом Джулиана Роуз (Julian Rose House), о котором и пойдет речь.



Достопримечательности Сиднея

Дом Джулиана Роуз (Julian Rose House)

Дом Джулиана Роуз (Julian Rose House), спроектированный в 1951 году и построенный в период 1953-1954 годов, в северном районе Сиднея – Wahroonga, является вторым из трех домов Гарри Зейдлера (Harry Seidler), в том месте. Три дома расположены на земле с крутым склоном таким образом, чтобы они могли наслаждаться видом на Национального парка Ku-ring-gai Chase и уединением.

Структура дома вдохновлена домами Пьера Кёнига и Крейга Эллвуда. Это конструкция, подвешенная на стальной раме и натяжителях. Идея поднять дом (3,30 метра) заключалась в том, чтобы максимально использовать солнечный свет, ветер и виды.

Гарри Зейдлер был австралийским архитектором австрийского происхождения, который считается одним из ведущих представителей методологии модернизма в Австралии и первым архитектором, полностью воплотивший принципы Баухауса в Австралии.



«Дом Джулиана Роуз» – это второй из трех модернистских домов, которые Зейдлер в конечном итоге построит на большом полусельском участке в северном пригороде Сиднея. Три дома тщательно расположены на крутом наклонном участке, чтобы максимально увеличить вид на великолепные пейзажи Национального парка Ku-ring-gai Chase внизу, сохраняя при этом индивидуальную конфиденциальность.

При проектировании дома современный архитектор думает о «среде для жизни», а не о пустых комнатах, похожих на коробки… он проектирует реальные пространства в интерьере для конкретных целей и проектирует мебель и оборудование, которые в них входят.



Гарри Зейдлер был знаком с аналогичными семейными комплексами, которые он посетил во время учебы в Гарварде в конце 1940-х годов, и на участке района Wahroonga смог подражать их ключевым характеристикам, таким как лесистая обстановка с далекими ландшафтными видами, частная подъездная дорога, извививающая через участок, тонко определяя различные получастные и частные зоны, и чистые коробчатые формы домов, парящих над землей.


Вид на дом со двора
Старое фото дома
Старое фото дома
Вид на дом с частной дороги
Экскурсия



«Дом Джулиана Роуз» конструктивно более смелый, чем предыдущий Дом Роуз Зейдлер (Rose Seidler House), с приподнятым главным этажом, поднятым из двойной консольной стальной рамы, часть которой была оставлена открытой в завершенной конструкции. На возвышенном положении, 3,3 метра над землей, максимизирует проникание солнечного света, доступ к ветру и виду на улице.

В послевоенный период многие архитекторы заинтересовались потенциалом использования конструкционной стали в строительстве домов, поскольку сталь позволяла предварительное изготовление за пределами площадки и скорость сборки. Был также интерес к модульному дизайну и экономии средств в строительстве, что сталь, казалось, облегчала – как это видели во многих примерах современных домов в США Пьера Кёнига, Крейга Эллвуда, Чарльза Имса, Джона Лотнера и Рафаэля Сорриано. «Дом Джулиана Роуз», похоже, был спроектирован на 4-футовой (1200 мм) сетке.

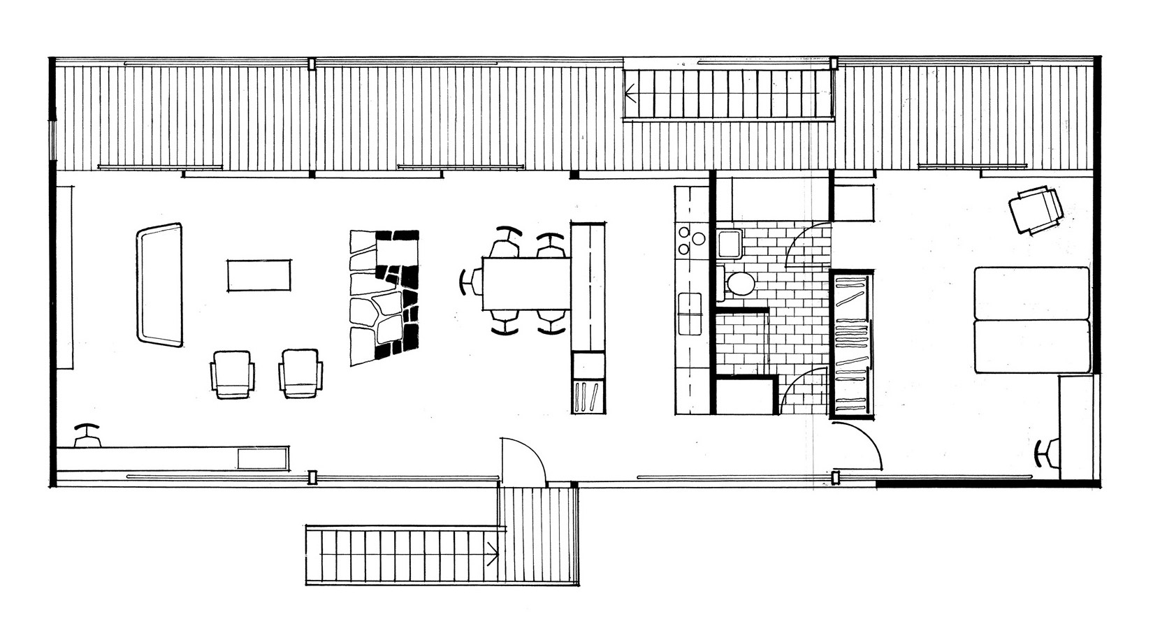
Внутри дом отличается компактностью плана с основными жилыми помещениями в одной линии, а каждая комната освещена окнами от пола до потолка и раздвижными дверями вдоль северной стороны, с видом. Элементы внутренней схемы повторяют идеи, которые Зейдлер использовал в Дом Роуз Зейдлер (Rose Seidler House), такие как вариация отдельно стоящего камина, разделяющего столовую и гостиную, и проходное окно между столовой и кухней. Кухня, более компактная, чем в Rose Seidler House, включает в себя аналогичные шкафы и отделку, все они выбраны для простоты использования и ухода.

Зал с видом на камин
Кухня
Часть балкона со стороны зала



Конфигурация обеих кухонь основана на модельном дизайне кухни, разработанном в 1926 году Грете Шютте-Лихотцки для жилых комплексов во Франкфурте после Первой мировой войны, с акцентом на простоту использования, удобный рабочий процесс, свет, воздух и санитарию. К ним Гарри Зейдлер добавил современную технику, которую мы теперь принимаем как должное на любой кухне.

Первоначально дом задуман как загородный, с одной спальней на главном этаже и меньшей спальней, спрятанной за навесом, этот дом идеально подходил для небольшой семьи. Следущий владелец, потребовал большей площади жилья для гораздо большей семьи и, в конечном итоге, убедил Гарри Зейдлера спроектировать большую отдельно стоящую двухэтажную пристройку сзади, соединенную с первой ступенью застекленным мостом и практически удвоив общую площадь.

За ступенями застекленный мост между зданиями
Часть балкона у спальни
Комната на первом этаже пристроенного здания



Дом был представлен в журнале Australian Home Beautiful в августе 1956 года, который подчеркнул привлекательность ландшафтной обстановки, изобретательность архитектора в структуре и внутренней конфигурации дома – особенно расслабленный комфорт и простоту использования. Дом стал известен на международном уровне и по-прежнему является любимым примером среди студентов-архитектуры из США и Европы, которые часто обращаются в библиотеку и исследовательской коллекцию Кэролайн Симпсон для получения подробной информации.

В 2018 году нынешний владелец завершил реставрацию с почти кураторским подходом к поиску оригинальной документации, сопоставлению материалов и отделок, удалению более поздних дополнений и деликатному обновлению в соответствии с текущими требованиями. Время от времени владелец любезно разрешал Музеям истории Нового Южного Уэльса предлагать экскурсии по дому под руководством куратора, но в то же время мы можем наслаждаться просмотром этих запоминающихся исторических изображений.

Ваш персональный гид по Сиднею Ирина





Статьи на тему

Дом с историей – Вудлендс (Woodlands)
– Дом Эрилдин и сад (Eryldene House and Garden)
– «Nutcote» – Дом-музей Мэй Гиббс (May Gibbs)
– Дом Роуз Сейдлер (Rose Seidler House)
– Дом Залива Элизабет (Elizabeth Вау House)
– Усадьба Воклюз (Vaucluse House)

Карты и полезные ссылки

– Карта Сиднея – Street Directory


Полный список Поездок на выходные

Информация в посте может добавлятся и изменяться!
Подпишитесь на RSS и не пропустите следующих статей.




0 Comments

Leave a Reply

Your email address will not be published. Required fields are marked *